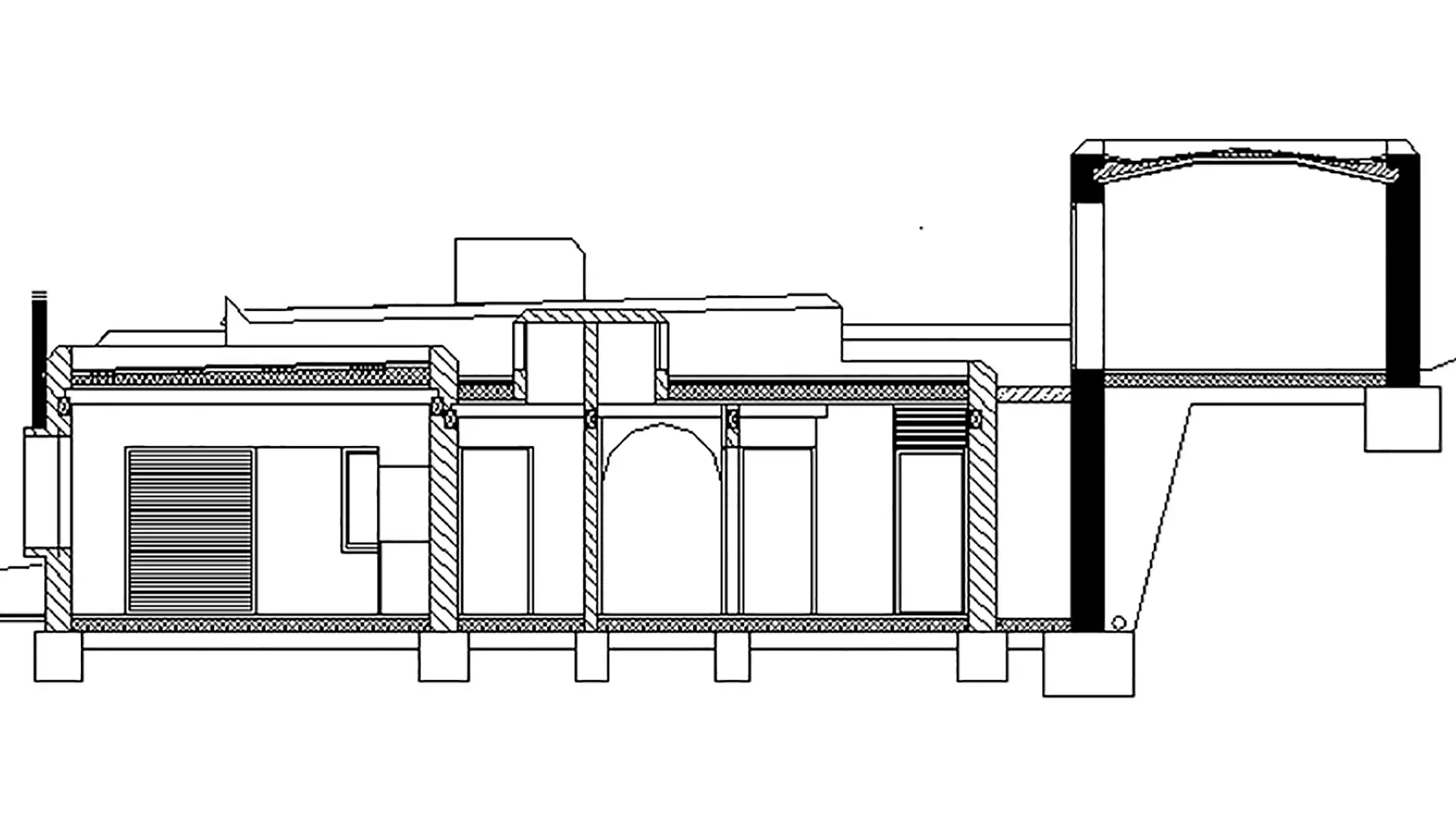
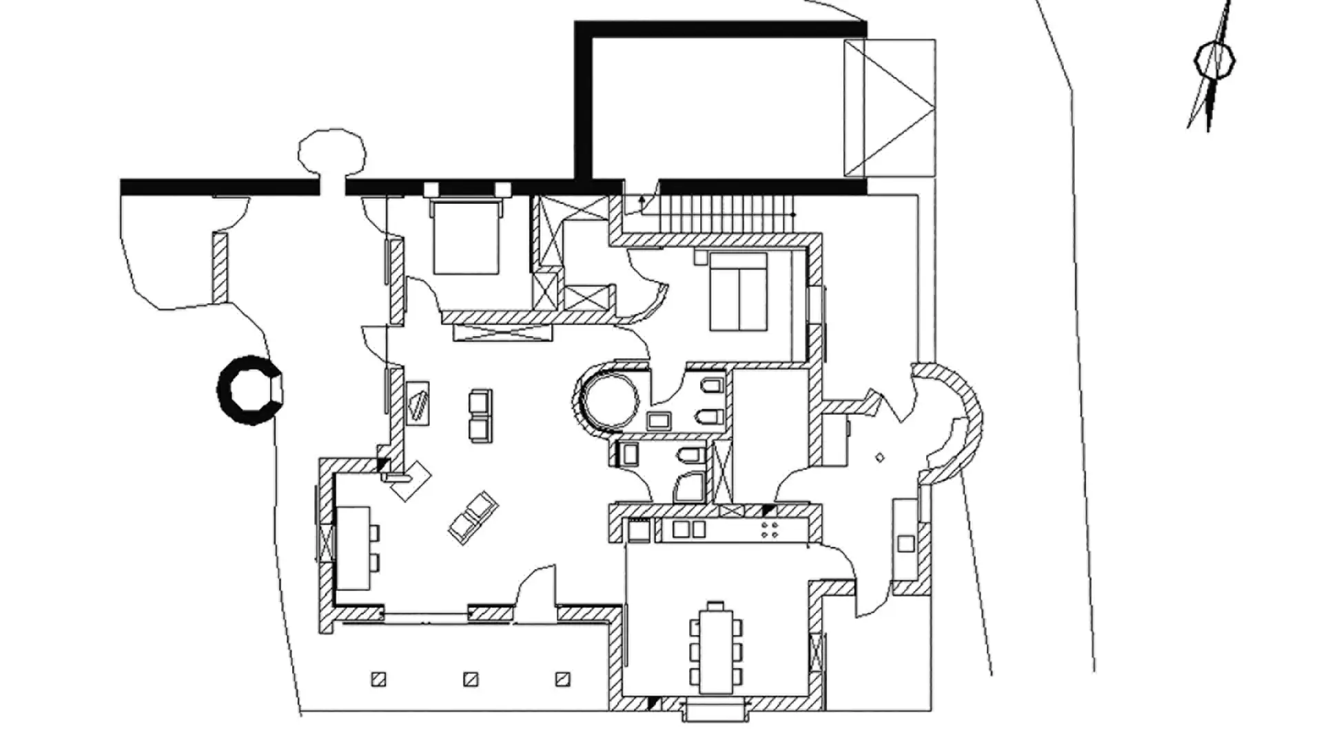
CAVE & PATIO
Troglodyte housing of about 70 m2, attached to a group of caves in Cannatektum’s facilities. It was acquired in 2009 and restored in 2010, after having partially collapsed due to lack of maintenance and the consequences of intense rains that lasted 3 months during the...

